193 Grey Street Glen Innes gives the opportunity to purchase a prime commercial property in the centre of town.
Currently operating as Duddy's Butchery, this commercial property represents a rare opportunity to secure a premium business location in one of Glen Innes' most prominent retail zones. With decades of history as a butchery behind it, Duddy's Butchery has become a cornerstone of the local community, widely known for its strong customer base, reliable trade, and excellent reputation.
Positioned in an unbeatable location, the premises are nestled between the town's two major supermarkets, ensuring a consistent flow of foot traffic throughout the day. Adding to its appeal, the property sits directly next door to a thriving café, drawing in morning coffee runs, lunchtime crowds, and daily passers by, creating an environment that supports strong daily exposure and walk-in business.
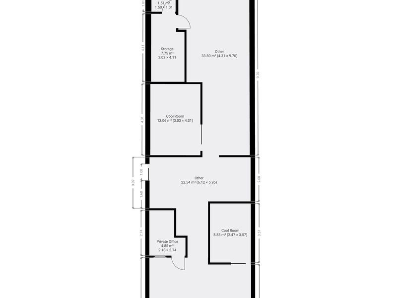
The building features a retail space, office, 2 x coolrooms, 2 x prep areas, bathroom and carpark.
With Glen Innes continuing to grow as a regional hub and demand for centrally located commercial properties on the rise, this is a smart opportunity for investors, entrepreneurs, or established operators looking to tap into a loyal local customer base in a vibrant retail setting.
Priced at $295,000 + GST if applicable.
Don’t miss the chance to own a property in one of the most sought-after locations in town.






















