Perfectly presented and ready to move into, this solid brick and tile home offers relaxed family living in a peaceful Glen Innes setting.
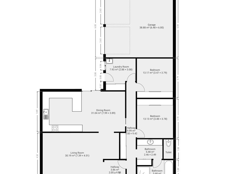
Inside, you’ll find three comfortable bedrooms, the second & third bedrooms feature large built in wardrobes, providing plenty of storage, while the master offers the space for a dresser and tallboy. The spacious, light-filled open-plan kitchen and dining area includes electric cooking, convenient breakfast bar and tiled flooring.
The inviting lounge room is a standout feature, large, bright, and ideal for both family time and entertaining. A wood heater ensures cosy warmth through the winter months.
The well-designed three-way bathroom offers a bath, shower, and toilet, with direct access from the master bedroom, adding an extra touch of convenience and privacy.
Outside, the property continues to impress with a double lock-up garage, a 3.5kW solar system to help reduce energy costs, and established apple and peach trees. The easy-care 1,340m² block provides ample space for outdoor entertaining, gardening, or simply relaxing in the sunshine.
This lovely home is move-in ready and perfect for first-home buyers, downsizers, or investors seeking a well-kept property in a great location. Don’t miss this opportunity, contact Country Wide Property (02 6732 3635) today to arrange an inspection.
- Open Fireplace
- Built-in Wardrobes


































