"LAST HILL STANDING" 74 East Pandora Road is an immaculately presented 23-acre approx. lifestyle and livestock property offering first-class infrastructure, exceptional water security and a freshly updated modern homestead.
Perfect for buyers seeking a productive small-farm, the property features seven fully fenced and electrified paddocks, quality improved pastures, established lambing and quarantine areas, and premium handling facilities including a sheep handler, V-draft, load-cell weigh station and shearing area. Water is a standout with troughs across key paddocks, a 22,500L stock tank, two dams, and Stonehenge Creek running through the property, with provisions in place for pumping. The farm carries current Livestock Assurance Accreditation, MSA licensing and has operated as a registered Suffolk Sheep Stud for the past three years.
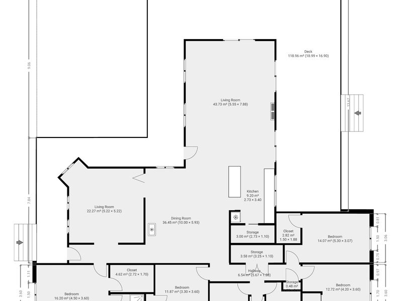
The spacious four-bedroom, two-bathroom homestead has been refreshed with a full exterior repaint in 2025 and enjoys open-plan living, high ceilings, new blinds and curtains, a walk-in pantry, gas cooking, and extensive storage throughout. Comfort is assured with an Illusion gas log fireplace, ducted heat/cool transfer system, split-system air-conditioning and full insulation. Energy efficiency is exceptional thanks to a 6.5kW solar array, instantaneous gas hot water.
A 102,000L domestic tank with filtration, new water pump, three-bay shed with workbenches, aged-access ramp and more than 165 tonnes of new aggregate on the driveway complete this impressive package.
Offering productivity, comfort and reliability in equal measure, 74 East Pandora Road is a rare turnkey rural holding—ideal for stud, livestock or lifestyle living in the highly sought-after Glen Innes region.
- Gas Heating
- Reverse Cycle Air Conditioning
- Balcony
- Deck
- Fully Fenced
- Shed
- Broadband Internet Available
- Built-in Wardrobes
- Dishwasher
- Floorboards
- Rumpus Room
- Workshop
- Solar Panels
- Water Tank




































































